- 液位儀表系列
- 流量儀表系列
- 物位儀表系列
- 壓力/液位/差壓/密度變送器
- 液位/溫度/壓力/流量-報警儀
- PLC/DCS自動化控制監控系統
- GPRS無線遠傳裝置
- 物位儀表系列
- 有紙/無紙記錄儀系列
- 溫度儀表系列
- 分析儀|檢測儀|校驗儀系列
全國銷售熱線:400-9280-163
電話:86 0517-86917118
傳真:86 0517-86899586
銷售經理:1560-1403-222 (丁經理)
??? ? ? ? 139-1518-1149 (袁經理)
業務QQ:2942808253 / 762657048
網址:http://www.tiansocks.com
電話:86 0517-86917118
傳真:86 0517-86899586
銷售經理:1560-1403-222 (丁經理)
??? ? ? ? 139-1518-1149 (袁經理)
業務QQ:2942808253 / 762657048
網址:http://www.tiansocks.com
超聲波液位計故障分析及維護策略分析及維護策略之一
發表時間:2021-09-24 ??點擊次數:768? 技術支持:1560-1403-222
1 前言
超聲波液位計作為一種非接觸式物位測量儀表,具有測量精度高、安裝簡便、基本免維護等特點,常用于測量各種容器內液體的液位。在核電機組運行中,如安全殼地坑、疏水箱等容器由于其內部介質放射性高,使用超聲波液位計作為測量儀表極大簡化了后續儀表的維護工作,人員數量也得到有效控制。超聲波液位計的測量準確與否與儀表的安裝、調校有著較大關系。本文基于智能型超聲波液位計的調試診斷方法,對三門核電核島系統中超聲波液位計的典型故障進行分析,并提出相應的解決方法和維護策略。
2 超聲波液位計測量原理
當聲波以垂直角度入射至介面時,其反射系數為兩種介質的聲阻抗差與聲阻抗和的比值的平方。當兩種介質的聲阻抗相差較大時,即在界面處形成所謂的硬邊界,這是入射波的介質速度在碰到分界面時好像彈性碰撞一樣,變成反向速度,反射波質點速度與入射波質點速度相位改變180°。以空氣/水界面為例,水的聲阻抗與空氣的聲阻抗相差4個數量級,相差懸殊,因此當聲波射入空氣/水界面時,聲波幾乎全部被反射。
超聲波液位計的測量原理及為回波測距,利用測量聲波從發射至接受的時間間隔,結合補償后的聲波聲速得到聲波傳輸的距離h。1/2h即為超聲波探頭距離界面的距離。利用已知的儀表安裝高度與超聲波至界面的距離作差,即可獲得當前儲液裝置內的液位高度。
超聲波探頭使用***多的是由壓電晶片(或壓電陶瓷)制成的換能器。超聲波的接收和反射是基于壓電晶片的壓電效應和逆壓電效應。其工作原理是:當壓電晶片受發射脈沖激勵后產生振動,即可發射聲脈沖,此即逆壓電效應。當超聲波作用于晶片時,晶片受迫振動引起的形變可轉換成相應的電信號,此為正壓電效應。前者是超聲波的發射,后者為超聲波的接收。同一塊壓電晶體既負責超聲波的發射,也負責接收。因此,在發射狀態與接收狀態之間,需要一段時間使得壓電晶體從振蕩狀態恢復到靜止狀態,然后才能開始接收反射的超聲波信號,根據時域反射原理,這段時間代表了空間的一段距離,即盲區。在盲區內,超聲波液位計是不能進行測量的。一般超聲波液位計的測量范圍約大,其盲區就越大。
不同的超聲波頻率使用于不同量程的超聲波液位計。一般規律是量程越小,超聲波頻率越高;量程越大,超聲波頻率越低。這是因為超聲波的能量在發射和返回經過的介質中被衰減,低頻長波的能量較大,可保證超聲波的能量在長時間傳播過程中不至于衰減的太多。若超聲波能量太強,則被測頁面會產生大量空化氣泡,反而會降低回波的質量,影響測量精度。需根據測量范圍的大小,選取合適的超聲波液位計。
2.1 回波曲線
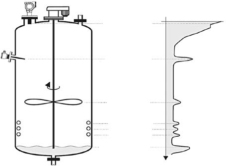
超聲波液位計迅速連續地發射脈沖,并掃描它們的反射回波。收到回波的能量將根據它們的飛行時間排列。代表這種序列的圖形就稱為包絡曲線(如圖1所示)。

回波曲線包含初始脈沖、衰減以及一個或多個回波,它們以飛行時間的長短為序排列。要提高液位測量的可靠性,就要擴大真實液位信號與其它所有干擾信號的區別。
2.2 回波抑制曲線
超聲波脈沖在容器內飛行傳輸過程中,遇到爬梯、梁、管道、焊縫、攪拌葉片等結構物時,也會產生回波,即雜波干擾信號。為了從回波曲線中甄別出真實的液位回波信號,超聲波液位計通常會設置一條隨時間變化(即空間上的距離變化)的濾波曲線,確定當回波信號超出閾值時,才被認定為有效回波,進而進入算法識別模塊后續處理。該回波抑制曲線,又稱為TVT時變閾值、干擾抑制曲線、罐體映像等,其目的在于通過閾值門限,濾除無用干擾雜波。如圖2所示。

3 超聲波液位計典型故障分析
超聲波液位計沒有可動部件,結構上主要分為超聲波探頭、信號變送處理、人機界面3個部分。根據結構上這3個部分的集成情況,分為一體式和分體式兩種。從采用的接線方式上,可劃分為兩線制、三線制和四線制。兩線制為供電與信號輸出共用,采用24V直流電源供電,同時供電線路也作為mA信號的輸出線路;三線制為供電回路與信號回路獨立,采用24V直流電源供電,供電負端與信號負端共用一根芯線;四線制則為供電回路與信號回路完全隔離,使用直流或者交流電源供電,獨立信號回路回傳液位信號。
三門核電從品牌上主要使用的超聲波液位計有3類,E+H FMU系列、Vega系列和西門子系列。其中,E+H的FMU系列和Vega系列采用兩線制,西門子LUT400系列則采用四線制,使用220VAC電源供電,獨立mA信號輸出。
3.1 VEGA液位變送器跳滿
在海水淡化系統調試過程中發現,清水池A液位變送器(VEGASON 62)超聲波液位變送器顯示滿液位,而真實液位約3m左右。三門核電水處理系統的儲液罐多處于室外,當室內外溫差大時,超聲波探頭極易產生凝露,曾多次出現儀表輸出滿量程。對于清水池A液位變送器跳滿,維護人員拆卸該液位計檢查探頭,發現探頭并無明顯凝露,且安裝處無干擾源,因此懷疑為儀表回波抑制曲線未設置或設置不合適。
使用Pactware軟件,結合Hart調制解調器,連接超聲波液位計進行回波曲線診斷。發現回波曲線在接近滿罐液位處存在結構件導致的小干擾反射信號(如圖3所示),

且此臺超聲波液位計并未設置回波抑制曲線,導致該小干擾信號被當成真實液位信號顯示。
通過診斷軟件,查看該超聲波液位計的回波曲線,即可比較方便的定位故障機理。因此只需對接近滿罐處的雜波設置回波抑制曲線,濾除該雜波信號即可。超聲波液位計的干擾抑制***好在空罐情況下設置,可對整個測量范圍內的結構干擾進行抑制。處理本次故障時,因清水池液位已有3m左右,干擾抑制的范圍應該盡量接近當前液位,但不能超過該液位。通過回波曲線查看,真實液位回波距離在3.29m左右,對該超聲波液位計設距離3m內的自動回波抑制后,讀取回波曲線(見圖4),發現滿罐處的小干擾信號被有效濾除,液位計顯示真實液位。

上一條:超聲波液位計等液位計作研究的實際意義
下一條:超聲波液位計故障分析及維護策略分析及維護策略之二
超聲波液位計作為一種非接觸式物位測量儀表,具有測量精度高、安裝簡便、基本免維護等特點,常用于測量各種容器內液體的液位。在核電機組運行中,如安全殼地坑、疏水箱等容器由于其內部介質放射性高,使用超聲波液位計作為測量儀表極大簡化了后續儀表的維護工作,人員數量也得到有效控制。超聲波液位計的測量準確與否與儀表的安裝、調校有著較大關系。本文基于智能型超聲波液位計的調試診斷方法,對三門核電核島系統中超聲波液位計的典型故障進行分析,并提出相應的解決方法和維護策略。
2 超聲波液位計測量原理
當聲波以垂直角度入射至介面時,其反射系數為兩種介質的聲阻抗差與聲阻抗和的比值的平方。當兩種介質的聲阻抗相差較大時,即在界面處形成所謂的硬邊界,這是入射波的介質速度在碰到分界面時好像彈性碰撞一樣,變成反向速度,反射波質點速度與入射波質點速度相位改變180°。以空氣/水界面為例,水的聲阻抗與空氣的聲阻抗相差4個數量級,相差懸殊,因此當聲波射入空氣/水界面時,聲波幾乎全部被反射。
超聲波液位計的測量原理及為回波測距,利用測量聲波從發射至接受的時間間隔,結合補償后的聲波聲速得到聲波傳輸的距離h。1/2h即為超聲波探頭距離界面的距離。利用已知的儀表安裝高度與超聲波至界面的距離作差,即可獲得當前儲液裝置內的液位高度。
超聲波探頭使用***多的是由壓電晶片(或壓電陶瓷)制成的換能器。超聲波的接收和反射是基于壓電晶片的壓電效應和逆壓電效應。其工作原理是:當壓電晶片受發射脈沖激勵后產生振動,即可發射聲脈沖,此即逆壓電效應。當超聲波作用于晶片時,晶片受迫振動引起的形變可轉換成相應的電信號,此為正壓電效應。前者是超聲波的發射,后者為超聲波的接收。同一塊壓電晶體既負責超聲波的發射,也負責接收。因此,在發射狀態與接收狀態之間,需要一段時間使得壓電晶體從振蕩狀態恢復到靜止狀態,然后才能開始接收反射的超聲波信號,根據時域反射原理,這段時間代表了空間的一段距離,即盲區。在盲區內,超聲波液位計是不能進行測量的。一般超聲波液位計的測量范圍約大,其盲區就越大。
不同的超聲波頻率使用于不同量程的超聲波液位計。一般規律是量程越小,超聲波頻率越高;量程越大,超聲波頻率越低。這是因為超聲波的能量在發射和返回經過的介質中被衰減,低頻長波的能量較大,可保證超聲波的能量在長時間傳播過程中不至于衰減的太多。若超聲波能量太強,則被測頁面會產生大量空化氣泡,反而會降低回波的質量,影響測量精度。需根據測量范圍的大小,選取合適的超聲波液位計。
2.1 回波曲線
超聲波液位計迅速連續地發射脈沖,并掃描它們的反射回波。收到回波的能量將根據它們的飛行時間排列。代表這種序列的圖形就稱為包絡曲線(如圖1所示)。

回波曲線包含初始脈沖、衰減以及一個或多個回波,它們以飛行時間的長短為序排列。要提高液位測量的可靠性,就要擴大真實液位信號與其它所有干擾信號的區別。
2.2 回波抑制曲線
超聲波脈沖在容器內飛行傳輸過程中,遇到爬梯、梁、管道、焊縫、攪拌葉片等結構物時,也會產生回波,即雜波干擾信號。為了從回波曲線中甄別出真實的液位回波信號,超聲波液位計通常會設置一條隨時間變化(即空間上的距離變化)的濾波曲線,確定當回波信號超出閾值時,才被認定為有效回波,進而進入算法識別模塊后續處理。該回波抑制曲線,又稱為TVT時變閾值、干擾抑制曲線、罐體映像等,其目的在于通過閾值門限,濾除無用干擾雜波。如圖2所示。

3 超聲波液位計典型故障分析
超聲波液位計沒有可動部件,結構上主要分為超聲波探頭、信號變送處理、人機界面3個部分。根據結構上這3個部分的集成情況,分為一體式和分體式兩種。從采用的接線方式上,可劃分為兩線制、三線制和四線制。兩線制為供電與信號輸出共用,采用24V直流電源供電,同時供電線路也作為mA信號的輸出線路;三線制為供電回路與信號回路獨立,采用24V直流電源供電,供電負端與信號負端共用一根芯線;四線制則為供電回路與信號回路完全隔離,使用直流或者交流電源供電,獨立信號回路回傳液位信號。
三門核電從品牌上主要使用的超聲波液位計有3類,E+H FMU系列、Vega系列和西門子系列。其中,E+H的FMU系列和Vega系列采用兩線制,西門子LUT400系列則采用四線制,使用220VAC電源供電,獨立mA信號輸出。
3.1 VEGA液位變送器跳滿
在海水淡化系統調試過程中發現,清水池A液位變送器(VEGASON 62)超聲波液位變送器顯示滿液位,而真實液位約3m左右。三門核電水處理系統的儲液罐多處于室外,當室內外溫差大時,超聲波探頭極易產生凝露,曾多次出現儀表輸出滿量程。對于清水池A液位變送器跳滿,維護人員拆卸該液位計檢查探頭,發現探頭并無明顯凝露,且安裝處無干擾源,因此懷疑為儀表回波抑制曲線未設置或設置不合適。
使用Pactware軟件,結合Hart調制解調器,連接超聲波液位計進行回波曲線診斷。發現回波曲線在接近滿罐液位處存在結構件導致的小干擾反射信號(如圖3所示),

且此臺超聲波液位計并未設置回波抑制曲線,導致該小干擾信號被當成真實液位信號顯示。
通過診斷軟件,查看該超聲波液位計的回波曲線,即可比較方便的定位故障機理。因此只需對接近滿罐處的雜波設置回波抑制曲線,濾除該雜波信號即可。超聲波液位計的干擾抑制***好在空罐情況下設置,可對整個測量范圍內的結構干擾進行抑制。處理本次故障時,因清水池液位已有3m左右,干擾抑制的范圍應該盡量接近當前液位,但不能超過該液位。通過回波曲線查看,真實液位回波距離在3.29m左右,對該超聲波液位計設距離3m內的自動回波抑制后,讀取回波曲線(見圖4),發現滿罐處的小干擾信號被有效濾除,液位計顯示真實液位。

上一條:超聲波液位計等液位計作研究的實際意義
下一條:超聲波液位計故障分析及維護策略分析及維護策略之二
相關產品
- 相關文章
-
- 80G 高頻雷達物位計液位計適用于泡沫和攪拌工況的原因分析 【2025-08-06】
- 80G高頻雷達液位計防腐防爆耐高溫的功能是如何實現的? 【2025-07-23】
- 高頻雷達液位計在石油行業液位測量應用中的優勢有哪些 【2025-07-17】
- 雷達液位計測量時如何有效規避攪拌葉片和泡沫的干擾? 【2025-07-07】
- 4項儀器儀表項目斬獲國家科學技術獎勵榮譽 【2018-01-16】
- 靜壓式液位變送器廠家直銷 【2024-01-05】
- 浮子流量計在測量多粘度流體時粘度與浮子高度變化關系 【2015-10-22】
- 差壓變送器的分類、原理以及在玻璃生產線中的應用與發展前景 【2019-01-16】
- 浮球液位變送器接線法 【2024-01-03】
- 磁翻板液位計接線圖及24v電源、4-20mA遠傳信號接線方法說明 【2018-01-12】








